March 25, 2018


Evolution Sofas in Vespertine Restaurant | Designer Lounging meets Cutting Edge Dining in Los Angeles

Evolution Sofas in Vespertine Restaurant Rooftop

Featured in Wallpaper & The New York Times. Evolution Sofas in Vespertine, a twisting restaurant tower designed by Eric Owen Moss in Los Angeles. Named best restaurant by LA Times. Vespertine is a gastronomical experience that blurs the boundaries between food and architecture, seeking to disrupt modern day dining. 

Dining with Evolution Sofas in Vespertine Restaurant Rooftop

"The project was formed through a collaboration with architect Eric Owen Moss, and a group of renowned artists to re-imagine and explore the experience of dining. The convergence of food, art, architecture, music, and sculpture is woven throughout to create an immersive, multi-sensory event." - Jordan Kahn, chef/creator of Vespertine. 

Get the Vespertine lounging experience with Evolution Sofas in Supernova. Love to furnish your restaurant, cafe or F&B space with Ambient Lounge bean bag sofas? Contact us at 6802 9900 or email us at info@ambientlounge.sg

Vespertine Restaurant Tower

Excerpt from how architect Eric Owen Moss imagined Vespertine:

"Mars is the red planet.
It’s surrounded by two moons, Phobos and Demos.
The moon twins are raucous stones, spinning retrograde as they duel with one another in the sky.
That flying irregularity is a preamble to this architecture.

The tower.
Vespertine.
A curving shape constructed with straight steel lines.
What might a tower be? What might a restaurant be?
Vespertine interrogates that subject.
What you thought you knew, you don’t.
What you thought you’d do, you won’t.

Welcome to the men and women of twists and turns.
Citizens of Vespertine.

A ride on the steeds of Mars."

Vespertine 3D Modelling

"A preliminary study model made from a square pile of note paper, describes a concept for a tower which is not quite a regular box, nor a clear, spatial departure from the regular box. Rather the model suggests a conceptually soft geometry, or better, a twisted tower.

The tower twists along its height – rotates slightly, both clockwise at the top and counterclockwise toward the bottom. The plan shape and size is maintained as the tower volume pivots. The curvature of the form is conveyed by the horizontal and vertical steel plate grid that frames the glass enclosure. As the curvature increases, the spacing between plates is decreased to maintain the planar glass panel subdivision.

The proposed glazing system is composed of horizontal and vertical ‘fins’. Glazing components were never curved, so the outer curving surfaces are conveyed as the aggregate of the plate steel fins. This new structure will serve as the home of an exclusive restaurant.

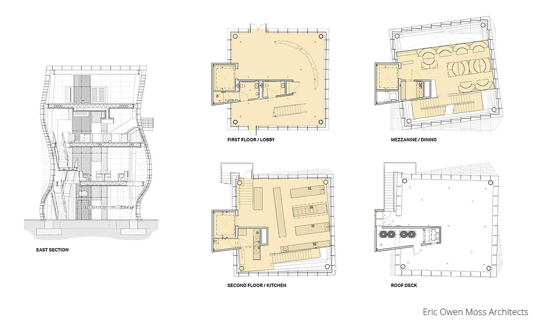
The internal structural frame closely follows the exterior shape. Four corner columns undergo a series of compound miters to reflect the curving form. The building consists of a ground floor, a mezzanine, a second floor, and an open-air roof deck connected by an internal stair and elevator."

- Eric Owen Moss Architects

Vespertine Drawings - Floor Plans and Section

Guests enter at the ground level and are escorted to their seats on the floor above. The mezzanine level serves as the main dining floor, an intimate setting with seating for only 22 patrons upon custom built steel banquettes surrounding CNC-milled translucent acrylic tabletops.

The rooftop offers a casual space for enjoying cocktails and the beautiful city views.

As guests exit they will pass by a curved 26 foot long table, suspended from the mezzanine and second floor ceilings, which delivers a keepsake upon their departure.

Vespertine Cuisine Concept

"Our cuisine explores a dimension of cooking neither rooted in tradition nor culture. We seek a better understanding of our ingredients by altering their context, blurring the interrelationships between materials and ideas. A place where deliciousness is driven by form and texture crafted into sculpture."

Materials:

Chicory stem
Dried brassica leaf
Physalis
Pumpkin seed
Scented geranium
Preserved lime
Northern pike roe

Vespertine Cuisine - Giant Kelp

"The macrocystis pyrifera, or 'giant kelp', is the largest marine alga in the world. They grow in massive 'forests' and are the primary food source for our local urchins. Formed into a sculptural chip, the flavor is reminiscent of toasted maple and artichoke. It is served alongside whipped ocean honey and wetland herbs."

February 11, 2018


All the world's a stage. Especially our Versa Table?

 

We knew our Versa Table bean bags are versatile. Coffee table, check. Take the acrylic top off for a footrest, check. Handy spare seat, check. And now... stage, check!

The Berg Brothers are an adorable bunny duo living in Singapore. Iceberg's a blue-eyed white Netherland dwarf, while Brownberg's an orange Holland Lop. Here, Iceberg makes a dramatic entrance on their Versa Table in Tundra Spring (coincidentally the same colour as Iceberg), while Brownberg's cool as a cucumber!

Video: @thebergbrothers_buns

December 09, 2017


Ambient Lounging in Superhero Universe

Twin Couch, Avatar Lounger and Butterfly Sofa bean bags in Fred's room

Marvel (pun intended) at Fred's super collection while lounging in his therapy room. It's an amazing treasure trove from the likes of Sideshow, XM Studios, Bowen Designs, Kotobukiya, Gentle Giant etc. 

"Officially moved in. Glad everything is in place. Playing around with my couches in day & night mode. Absolutely happy eventually." Fred's got our Twin Couch, Avatar Lounger and Butterfly Sofa.

Cogi the corgi on Avatar Lounger bean bag

Fred's very adorable corgi is his “Lockjaw”, the guardian for his superhero galaxy. Here, Cogi the corgi takes a breather on his Avatar Lounger. Can you spot Captain America, Hulk, The Darkness, Iron Spider and more?

Twin Couch bean bags in Tundra Spring in Fred's room

"Settling down finally is the best feeling ever. It was a hectic 2 months for me but eventually everything was worthwhile." Fred's Twin Couch has got Captain America and Deadpool looking out for him!

Butterfly Sofa bean bag with a view of superhero collectibles

"The satisfaction of this view of my statues every night with this comfortable Butterfly chair from Ambient Lounge." It's a view that's out of this world, with the likes of Iron Man and Iron Spider.

Avatar Lounger bean bag in the world of superheros

"My perfect therapy room complete with this new addition Ambient Lounge chair," says Fred. It's our honour really!

Amazingly lightweight with body moulding comfort and luxurious fabrics, Ambient Lounge bean bag sofas are the choice of mancaves, collectors' havens and "therapy rooms" the world over. What about yours?

Photos: @defredsg

November 04, 2017


German fashion blogger reviews our newest MODULAR

David relaxing with MOD 4 Quad Couch and Twin Ottoman bean bags

Relax in style. Hunky German fashion blogger, David Renken, shows how. He loves his Game of Thrones while relaxing in our newest MODULAR. The Quad Couch and Twin Ottomans also easily unzip to 8 separate seats when his friends are over! They're a godsend for small homes as they're super light, flexible and compact. Welcome to revolutionary designer furniture with internal elastic structure, luxurious fabrics and soft quilted comfort!

MODULAR bean bag sofas unzip in seconds!

MODULAR bean bag sofas unzip in seconds for different possibilities! 

Settle into your very own oasis of comfort.

Settle into your very own oasis of comfort. 

Luscious Grey sofa weave fabric

Luscious Grey beautifully combines shades of deep mid greys and lighter tones with a subliminal highlight of metallic silver. A sensual fabric that's soft on the skin, it's suitable for any interior colour scheme. 

Cosy comfort with MODULAR bean bag sofas

Come home to truly cosy comfort. 

David seated in MOD 4 Quad Couch

Enjoy amazing living room flexibility for homes big and small. 

David settles in after a hard day.

David settles in after a hard day. 

Read more about David's mancave here. 

MODULAR soft launch special in showroom only. Experience now.

October 14, 2017


Amsterdam interior design blog Vosgesparis loves MODULAR flexibility

Beautiful minimalist home with MOD 3 Movie Couch and Twin Ottoman
Minimalist interior with Twin Ottoman in Luscious Grey
Easily unzip your MODULAR into separate chairs anytime

"I guess we all grew up with the bean bag, and as a teenager I loved to throw myself on them. As an adult I am more into something I can actually sit on or perfectly lounge in, curled up with my laptop or a magazine. After unpacking the boxes it was easy to connect the three elements with the robust zippers and form a small couch without armrests, something I rather like actually! The pouf consist of two smaller elements and was even easier to connect, elements can also be used individually and more different elements are available to form different lounge areas."

MOD 3 Movie Couch and Twin Ottoman in Luscious Grey
Rear view of MOD 3 Movie Couch and Twin Ottoman in Luscious Grey

"I was surprised by the sitting comfort of the couch and have to agree that these bean bags are a paradigm shift in the evolution of soft furniture. Hotels, cafes, lifestyle retreats, residential projects, universities, modern libraries and cinemas all are spaces for Ambient Lounge."

MODULAR soft launch special in showroom only. Experience now.

September 17, 2017


NEW: Welcome to the future of living rooms with MODULAR

MODULAR bean bag sofas in industrial chic loft apartment (MOD 6 Lounge Max configuration in Eco Weave)

Flexible configurations and lightweight mobility. MODULAR is revolutionary designer bean bag sofas with internal elastic structure, luxurious fabrics and soft quilted comfort.

Our MOD 6 Lounge Max configuration in beautiful Eco Weave fabric (shown above) blends effortlessly with the raw industrial aesthetics of this loft apartment. A shaggy area rug in cream completes this industrial chic ensemble.

Ambient Lounge® is groundbreaking innovation in evolving shapeless bean bags into contemporary designer furniture with clean lines, stylish form and premium comfort.

After pioneering the world's very first designer bean bag in 2005 with defined form and structure, MODULAR is next-level revolution in the field of designer soft furniture.

Combining cutting-edge innovation and intricate manufacturing techniques, MODULAR is contemporary designer furniture with proprietary internal elastic structure (with up to 100 internal elastic points in fact) and separate internal bead compartments.

You'll love the body moulding comfort that comes with our soft quilted cushioning and luxurious high-end fabrics. Despite having amazing seating stability and support, the internal structure is all soft and there are no sharp corners, making Ambient Lounge® child-friendly.

MODULAR is amazingly lightweight, and our commercial-grade zippers allow you to easily unzip to individual components and re-arrange your living room anytime. Something not possible with traditional sofas!

Soften your space with aesthetics, tactility and unparalleled functionality. Used in Spotify Asia HQ, Government Investment Corporation (GIC), Canadian High Commission, DBS Bank, Nissan and Subaru showrooms and offices, and many other premium venues in Singapore and worldwide, Ambient Lounge® is the leading global brand for designer bean bag sofas.

MODULAR is set to be the choice of leading interior designers and architects for residential, hospitality and commercial spaces. Soft launch in showroom only. Experience now.

Easily unzip MODULAR bean bag sofas (MOD 4 L Sofa configuration in Luscious Grey)
Easily unzip and re-arrange your living room in seconds. Shown here: MOD 4 L Sofa configuration in Luscious Grey fabric.

MODULAR bean bag sofas are lightweight and mobile (MOD 4 L Sofa configuration in Luscious Grey)
80% lighter than a traditional sofa, MODULAR is amazingly mobile so you can move them to another room anytime. Shown here: MOD 4 L Sofa configuration in Luscious Grey fabric.

Settle into the body moulding comfort of MODULAR bean bag sofas (MOD 5 Living Lounge configuration in Luscious Grey)
Settle into the body moulding comfort of MODULAR today. Shown here: MOD 5 Living Lounge configuration in Luscious Grey fabric. Experience MODULAR in showroom now.

January 22, 2017


Big in Japan

Ambient Lounge bean bag sofas and loungers in Tokyo

Have the coolest seat in the fashion capital of Tokyo. Chill out with beautiful contemporary forms, amazing support with our unique internal elastic structure... and world leading cloud-like comfort!

January 15, 2017


Chill out with the best seats in the house this Lunar New Year.

Avatar Lounger and Tech Pillow in Lime Citrus

She's in our Avatar Lounger in Lime Citrus (with matching Tech Pillow). Add a splash of zesty lime to your home (and office) for full-body weightless comfort. Perfect for home cinemas and office lounges!

Butterfly Sofas in Wildberry Deluxe perfect for relaxation corners.

Cocoon yourself with our luxurious Butterfly Sofas in Wildberry Deluxe. Create your very own cosy corner for reading or lounging.

Photo: shoogar.town

Acoustic Sofas are gaming seats for kids and adults alike!

He's in our Acoustic Sofa in Tundra Spring. Perfect for gaming and reclines amazingly to become a daybed too!

Zen Loungers are truly flexible and quilted lounging!

Settle into your personal cloud of comfort. Enjoy truly flexible lounging & luxurious quilted comfort with our Zen Loungers (featured here in Blue Jazz).

Photo: haanuul

November 13, 2016


Relax in Zen-like comfort with our Acoustic Sofa & Ottoman

Acoustic Sofa and Ottoman in Eco Weave

Enjoy luxurious quilted comfort & superb back/body support with our unique internal elastics. Lounge in beauty & comfort with Acoustic Sofa & Ottoman in Eco Weave.

Beautiful Daybed for Blissful Lounging

This beautiful daybed reclines effortlessly for truly blissful lounging. Our innovative internal elastic system = no metal parts inside!

Acoustic Sofa and Ottoman in Aubergine Dream

Ottoman is a footrest, spare seat and side table (simply place a tray on top for your drinks).

Acoustic Sofa in Luscious Grey for Working and Reading

Sits up beautifully for reading and working on your laptop.

June 25, 2016


Ambient Lounge Homes

New home owner tinytini created her cozy living room with our chilled-out Maison Package. Our Butterfly Sofa, Versa Table & Twin Couch in Aubergine Dream go beautifully with her classy contemporary decor. Blissful lounging ahead! Get this look.

Photo: tinytini

Remove the Versa tabletop for a footrest that matches your Butterfly Sofa beautifully. It's a complete chaise lounge with timeless circular forms!

Twin Couch is Living Room Genius that unzips to 2 chairs!

Need even more space? Stack your Twin Couch up! It's a godsend for tight spaces.